方案展示
設計說明
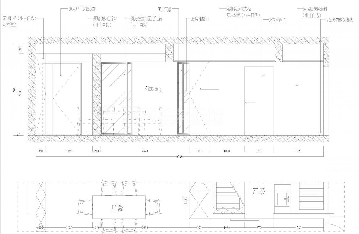
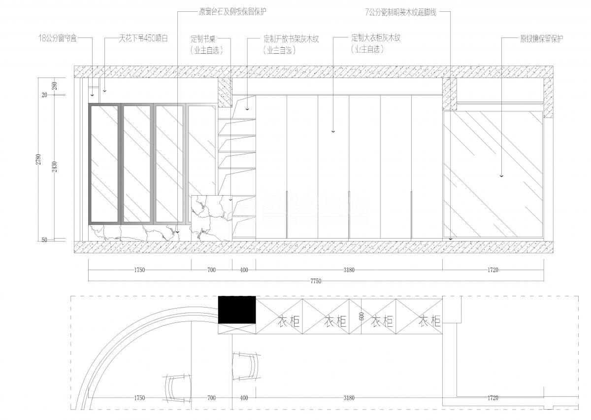
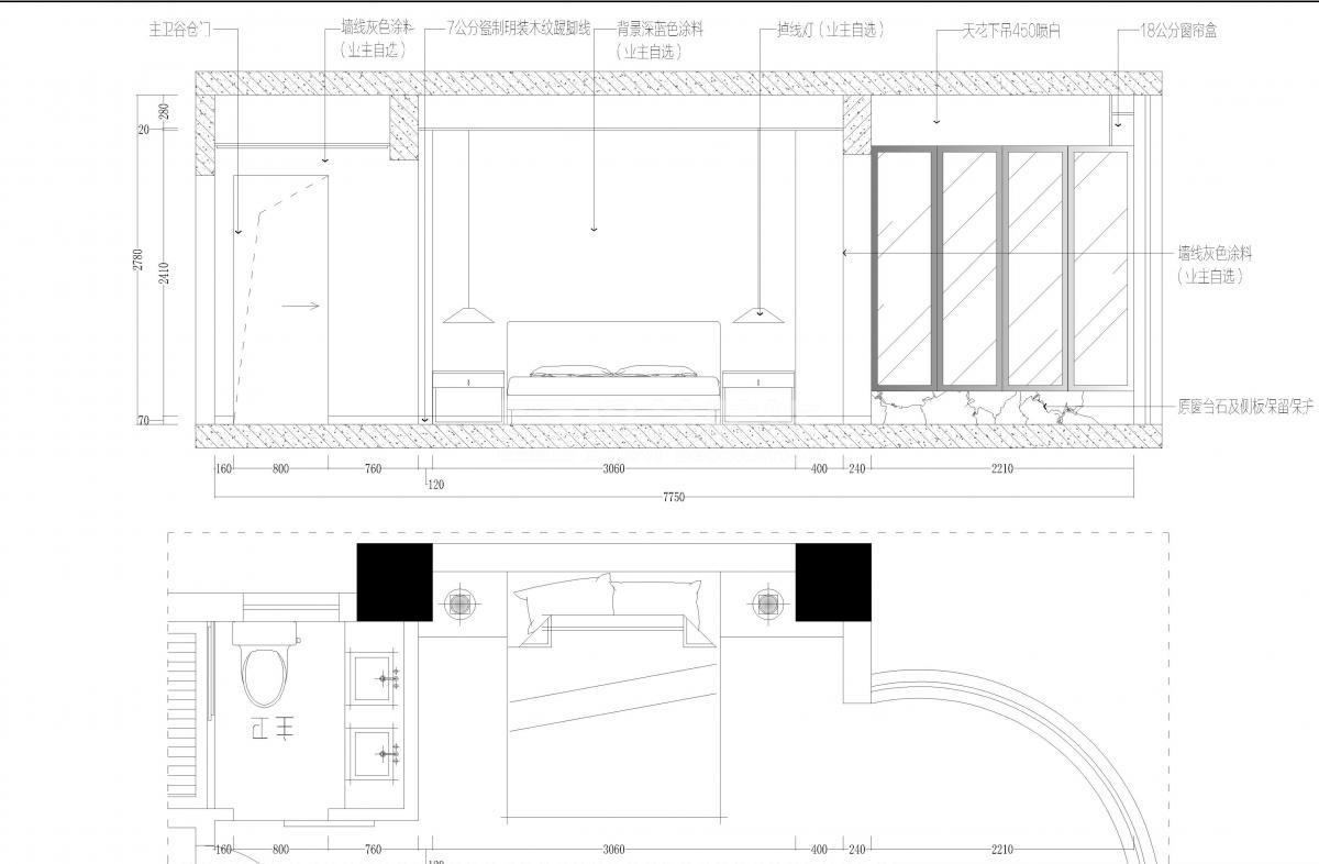
灰度婚房,從事與審美有關,與細致有關,與“強迫癥”有關的工作。兩人常住,要求簡潔,時尚,溫馨,省心。 整體從格局開始簡化,用色彩給出大色調,功能需要的局部巖板大理石,配上心儀的家私,跟大家都覺得不實用的地毯,把溫馨的氛圍融合起來。 優美的弧形陽臺配上細麻料遮光布跟白紗簾配上簡潔書桌,陽臺書房就成了,方便,舒適,愜意。午后一杯茶,俯仰白云山間綠色成蔭,生活本該如此。
[展開]-
星藝設計師的其它設計案例
-
現代風格的其它設計案例
關注我們
分享到
微信

立即預約
在線咨詢
在線客服
公安部備案號 44010602004978號