方案展示
設計說明
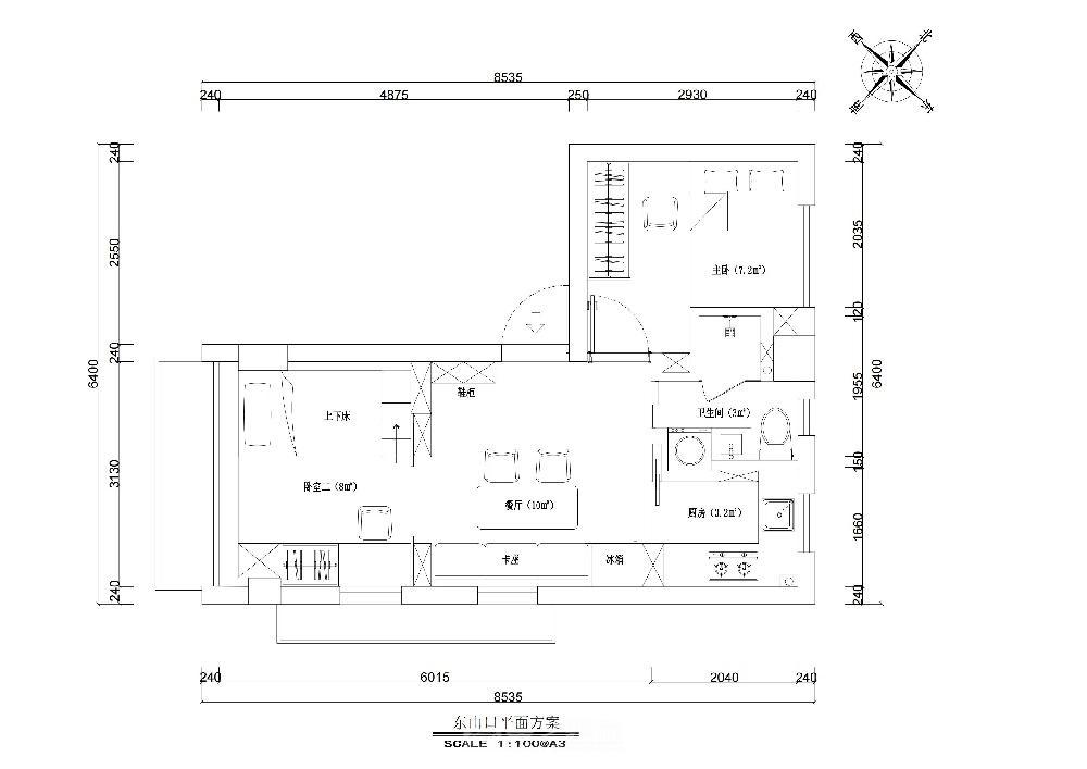
小戶型被多數人看作是一種過渡產品,長期以來很多人對小戶型的認識只停留在表面,得小戶型產品的居住功能更是充滿質疑,然而時至今日,小戶型產品豐富多樣,功能不斷完善,諸多小戶型在提高其使用率、性價比、居住舒適度的同時,其健康住宅的標準在一定程度上也得到提高,小產型產品的這些變化,引起了小戶型買家極大的關注,這就意味著,小戶型產品在真正意義上的到升級和升華。選擇小戶型并不是錢的問題,而是選擇一種生活方式,方便、快捷、時尚、優雅的生活方式。
[展開]
關注我們
分享到
微信

立即預約
在線咨詢
在線客服
公安部備案號 44010602004978號